MORI

  • Le château-ferme datant du 13ème siècle est classé monument historique. ​La Tour romane du 12ème siècle style roman tardif est posée en rase campagne et jouit d'une vue imprenable sur les champs. La superstructure en briques, formée de quatre tourelles et de trois lucarnes à gradins, fut ajoutée vers 1600. On accédait au donjon par la basse-cour de la ferme. Celle-ci fut ravagée par un incendie en 1780 et reconstruite à la fin du XVIIIe siècle et au début du XIXe siècle.
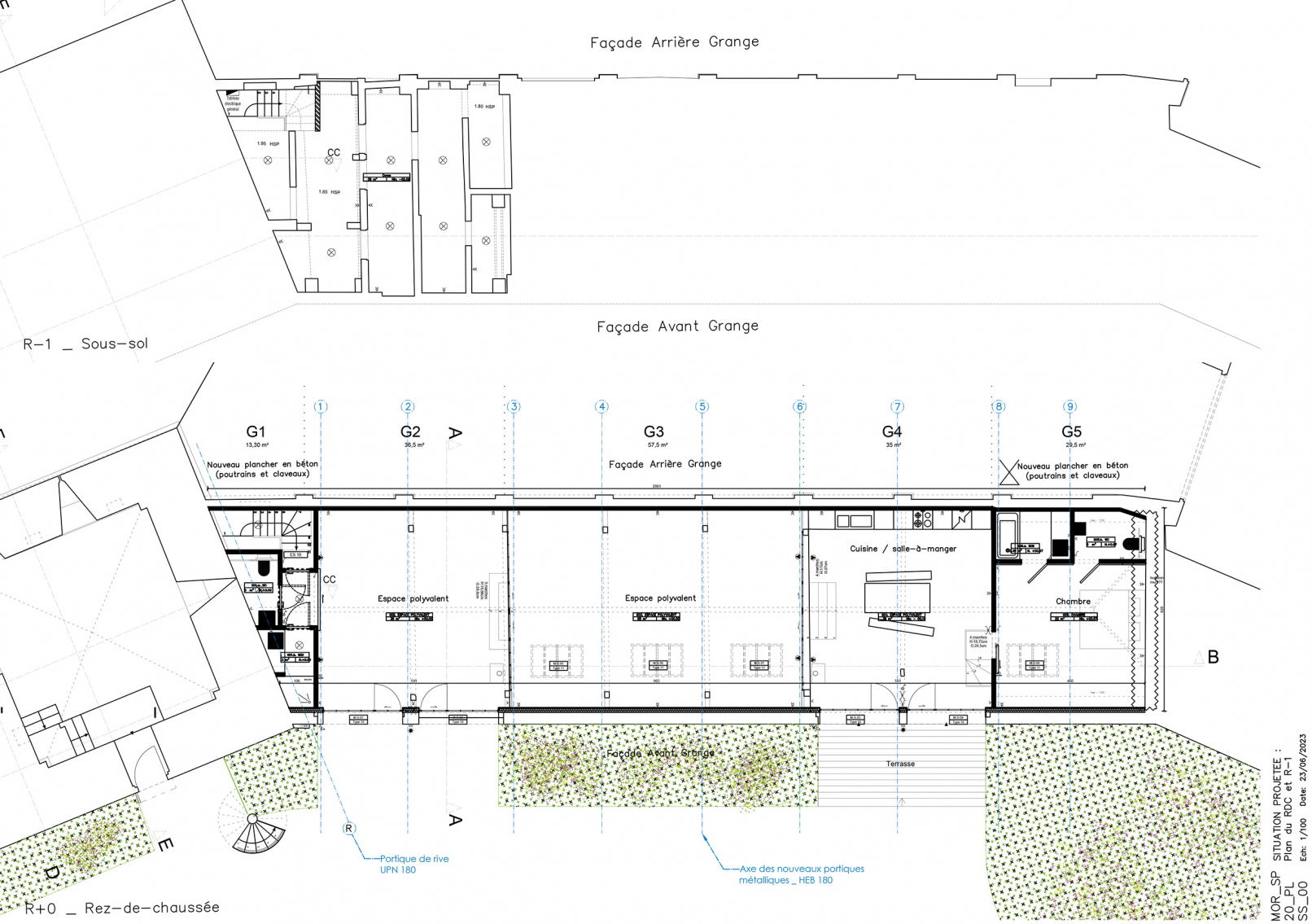
  • L’enjeu du projet est de réaménager la Tour et la grange attenante afin de rendre le lieu plus confortable pour la famille actuellement propriétaire.

Missions connexes :

  • Architecture d'intérieur - mobilier
  • Ravalement de façades
  • Remplacement des châssis
  •  
  • Statut : Permis d'urbanisme accepté
  • Surface : 600m2
  • Lieu : Ottignies - Brabant Wallon

  • Année : 2023

Equipe :

  • Architecture : Atelier des Aires Architectes / Ma2